2 PIECES 6 PERSONNES COMBE FOLLE 2D
Présentation
Rue de la Poste à Tignes le Lac, au pied des pistes (téléski du Chardonnet) et à 50m des commerces (magasins de sports, supermarché, boulangerie, bars et restaurant).
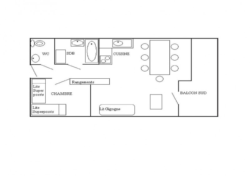
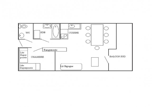
Cet appartement se compose de :
CUISINE : Four, Frigo, Lave-vaisselle, microondes
SALLE DE BAINS : Salle de douche, WC sépares
CHAMBRE : 2 x 2 lits superposes
SEJOUR : Lit gigogne, TV
Balcon orienté sud-est avec une vue magnifique sur le Lac
Casier à ski privatif
Résidence avec ascenseur
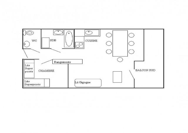
Cet appartement se compose de :
CUISINE : Four, Frigo, Lave-vaisselle, microondes
SALLE DE BAINS : Salle de douche, WC sépares
CHAMBRE : 2 x 2 lits superposes
SEJOUR : Lit gigogne, TV
Balcon orienté sud-est avec une vue magnifique sur le Lac
Casier à ski privatif
Résidence avec ascenseur
Situation
- Quartier :
- TIGNES LE LAC - LE BEC ROUGE
En bref
- Appartement :
- N° 2D
- Type d'hébergement :
- Appartement
- Superficie :
- 40 m²
- Nombre de Pièces :
- 2 pièces
- Capacité maximum :
- 6 personnes
- Nombre de chambre(s) :
- 1 chambre
- Nombre de salles de bains :
- 1 salle(s) de douche
- Etage :
- 2ème étage
- Exposition :
- Sud
- Animaux :
- Animaux interdits
- Loueur :
- Professionnel
- Lave-vaisselle

- En été, cet hébergeur vous propose les cartes My Tignes à des conditions préférentielles

Descriptif
- Séjour :
- 1 lit(s)-gigogne(s) (pour 2 personnes)
- Cuisine :
- Four
- Micro-ondes
- Lave-vaisselle
- Chambre 1 :
- 2 x 2 lits superposés
- Salle de Bains :
- 1 Salle(s) de douche
- 1 WC indépendant(s)
Équipements
- Ascenseur :
- Ascenseur
- Équipements du séjour :
- Télévision
À noter
- Caution à verser à l'hébergeur 500 €
- Taxe de séjour (+ de 18 ans) à payer su place
- Le montant de la taxe de séjour est variable, il est fixé par décision municipale en fonction du classement en étoiles de votre hébergement
Plan de la station
Carte

Destination
73320
TIGNES
Coordonnées GPS
Latitude : 45.46821
Longitude : 6.90293














