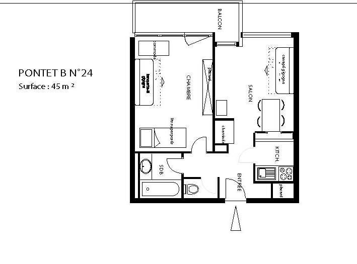
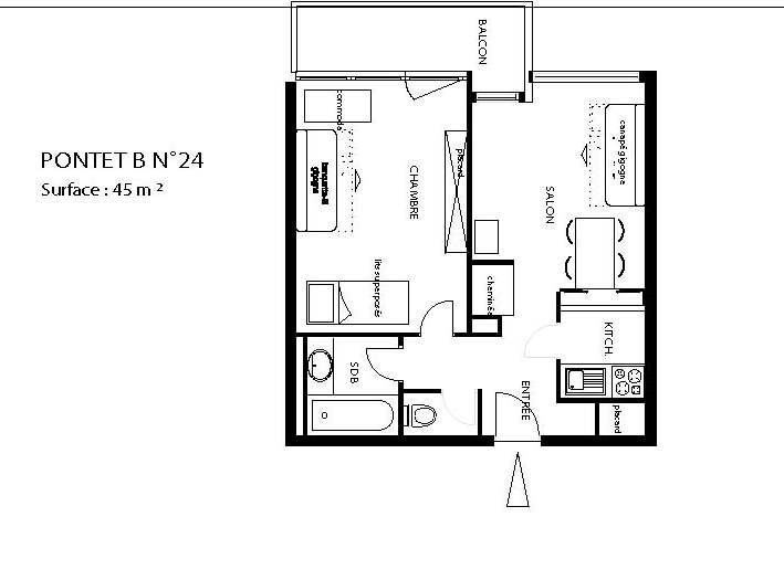
2 PIECES 6 PERSONNES PONTET B24
Présentation
Située à TIGNES LE LAVACHET (2100m d’altitude), la Résidence le PONTET est une petite résidence au calme et pied des pistes.
La résidence se situe à 150 mètres des commerces (supermarché, boulangerie, restaurants, magasins de sports...).
Les navettes gratuites de la station vous permettent de rejoindre TIGNES LE LAC et TIGNES VAL CLARET en 5 minutes.
Appartement fonctionnel type T2 disposant d'un balcon sud avec une belle vue sur les pistes
SALLE DE BAINS : baignoire, lavabo, WC separes
CUISINE : 4 plaques electriques, four, frigo, lave vaisselle, micro-onde
CHAMBRE : 2 lits superposes + 2 lits simples
SEJOUR : 1 lit gigogne
Casiers à skis
Résidence sans ascenseur
La résidence se situe à 150 mètres des commerces (supermarché, boulangerie, restaurants, magasins de sports...).
Les navettes gratuites de la station vous permettent de rejoindre TIGNES LE LAC et TIGNES VAL CLARET en 5 minutes.
Appartement fonctionnel type T2 disposant d'un balcon sud avec une belle vue sur les pistes
SALLE DE BAINS : baignoire, lavabo, WC separes
CUISINE : 4 plaques electriques, four, frigo, lave vaisselle, micro-onde
CHAMBRE : 2 lits superposes + 2 lits simples
SEJOUR : 1 lit gigogne
Casiers à skis
Résidence sans ascenseur
Situation
- Quartier :
- TIGNES LE LAVACHET
En bref
- Appartement :
- N° 24
- Type d'hébergement :
- Appartement
- Superficie :
- 45 m²
- Nombre de Pièces :
- 2 pièces
- Capacité maximum :
- 6 personnes
- Nombre de chambre(s) :
- 1 chambre
- Nombre de salles de bains :
- 1 salle(s) de bains
- Etage :
- 2ème étage
- Exposition :
- Sud
- Animaux :
- Animaux interdits
- Loueur :
- Professionnel
- Lave-vaisselle

- En été, cet hébergeur vous propose les cartes My Tignes à des conditions préférentielles

Descriptif
- Séjour :
- 1 lit(s)-gigogne(s) (pour 2 personnes)
- Cuisine :
- Four
- Micro-ondes
- Lave-vaisselle
- Chambre 1 :
- 2 lit(s) simple(s)
- 1 x 2 lits superposés
- Salle de Bains :
- 1 Salle(s) de bain avec baignoire
- 1 WC indépendant(s)
Équipements
- Ascenseur :
- Sans ascenseur
- Équipements du séjour :
- Télévision
À noter
- Caution à verser à l'hébergeur € 500 €
- Taxe de séjour (+ de 18 ans) à payer su place
- Le montant de la taxe de séjour est variable, il est fixé par décision municipale en fonction du classement en étoiles de votre hébergement
Plan de la station
Carte

Destination
73320
TIGNES
Coordonnées GPS
Latitude : 45.47065
Longitude : 6.91234


















